A 6,000-home master-planned community that would be one of the largest developments in Atlanta’s history if completed has been approved by the Henry County Board of Commissioners.
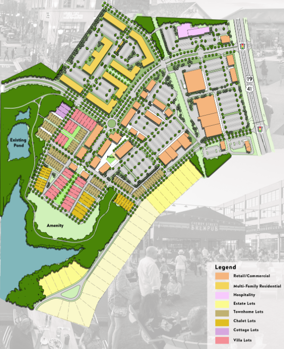
The Grove, as the 1,278-acre project is known, will be located on US 19/41 along the shore of J.W. Smith Reservoir between Hampton and Lovejoy, about 22 miles south of Hartsfield-Jackson International Airport.
If fully built out over its decades-long horizon, it would see the construction of 6,160 residences, two million square feet of commercial space, 100,000 square feet of retail and 180 hotel rooms. Plans also call for 150 acres of greenspace, 35 pocket parks, eight miles of trails and six amenity areas.
“The Grove will shape Henry County’s future for generations,” said Patrick Brooks, vice president of Geosam Capital, the private development firm behind the community. “Our phased approach ensures thoughtful, sustainable growth that benefits both current and future residents.”
The first phase of the development calls for road improvements, water and wastewater upgrades and the launch of initial residential construction.
Details:
- 2,460 single-family homes.
- 554 townhouses.
- 386 active-adult residences.
- 2,760 apartments.
- 1,320,000 square feet of commercial multi-use.
- 670,000 square feet of retail/commercial space.
- 100,000 square feet of village retail.
- 180 hotel rooms.


